ООО ГСМ

Дом 72 м² с террасой на кровле за 4 290 000 рублей

4 290 000 ₽

Современный двухэтажный дом с уникальной эксплуатируемой террасой на крыше

Дом площадью 72 м² с террасой на кровле за 4 290 000 рублей — это инновационное решение для комфортного проживания с максимальным использованием пространства. Современный модульный дом включает два полноценных этажа и уникальную эксплуатируемую террасу на крыше, которую можно построить на вашем участке всего за 30-40 дней. Идеально подходит для постоянного проживания, загородного отдыха или сдачи в аренду.

Уникальная терраса на кровле в подарок к площади дома!

При заказе до конца месяца — бесплатная установка системы наружного освещения террасы

Почему выбирают наш дом с террасой на кровле?

Современный дизайн и функциональность

Инновационный подход к организации жилого пространства:

  • Уникальная терраса на крыше: Дополнительная зона отдыха с панорамным видом
  • Просторные помещения: Высокие потолки 2.7 м, большие окна
  • Эргономичная планировка: Рациональное использование каждого квадратного метра
  • Круглогодичное проживание: Полноценная теплоизоляция для всесезонного использования
  • Энергоэффективность: Современные технологии снижения энергопотребления

Преимущества для жизни:

  • Комфорт современного жилья в сжатые сроки
  • Уникальная зона отдыха на террасе с видом на природу
  • Экономия на отоплении и коммунальных услугах
  • Возможность персонализации планировки
  • Высокая ликвидность и инвестиционная привлекательность

Экономическая эффективность

  • Быстрая окупаемость: 3-4 года при сдаче в аренду
  • Низкие эксплуатационные расходы: Энергоэффективные материалы и технологии
  • Увеличение стоимости участка: Наличие современного дома повышает стоимость недвижимости
  • Универсальность использования: Для личного проживания, аренды или гостевого дома

Комплектация за 4 290 000 рублей

1. Конструктив здания

  • Прочный металлический каркас повышенной прочности
  • Теплоизоляционные СИП-панели толщиной 200 мм
  • Монолитный фундамент или свайно-ростверковое основание
  • Плоская эксплуатируемая кровля с гидроизоляцией
  • Входная группа с терморазрывом
  • Панорамные окна с энергосберегающими стеклопакетами

2. Инженерные системы

  • Полная электрическая разводка с щитовым оборудованием
  • Система водоснабжения и канализации
  • Система отопления (электрическая или газовая)
  • Приточно-вытяжная вентиляция с рекуперацией
  • Система "умный дом" (базовый комплект)
  • Интернет и телевидение (разводка кабелей)

3. Отделка и благоустройство

  • Черновая отделка стен и потолков (штукатурка, шпаклевка)
  • Чистовые полы (ламинат, плитка в санузлах)
  • Сантехническое оборудование (унитазы, раковины, смесители)
  • Внутренние двери межкомнатные
  • Благоустройство террасы на кровле (настил, ограждение)
  • Наружная отделка (фасадные панели или штукатурка)

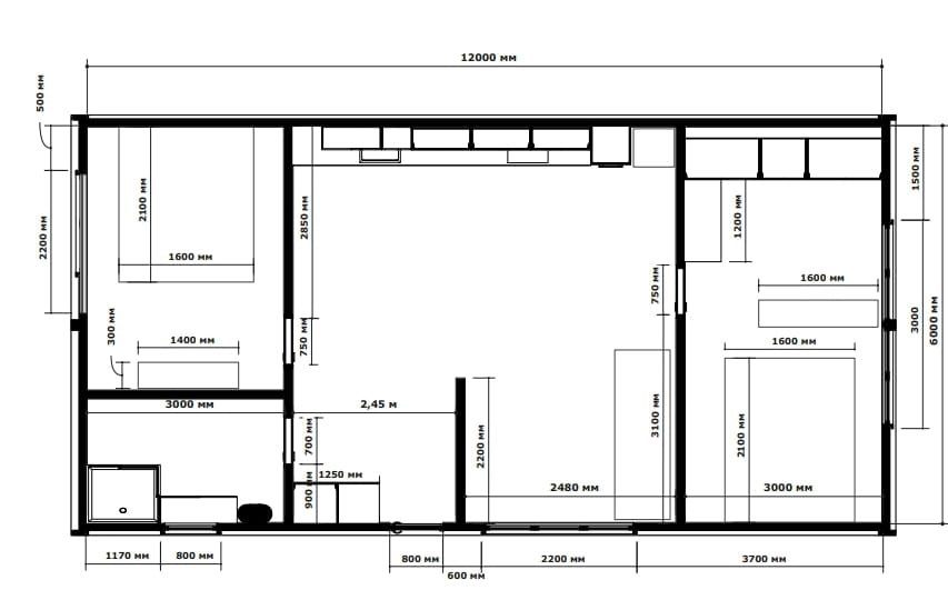
Технические характеристики дома

32
Параметр Значение
Общая площадь дома 72 м²
Площадь 1 этажа 36 м²
Площадь 2 этажа 36 м²
Площадь террасы на кровле 25 м²
Высота потолков 2.7 м
Срок монтажа "под ключ" 30-40 рабочих дней
Количество комнат 3-4 комнаты (в зависимости от планировки)
Санузлы 2 санузла (на каждом этаже)
Толщина утеплителя стен 200 мм
Гарантия на здание 7 лет
Гарантия на инженерные системы 3 года

Планировка дома

Первый этаж (36 м²):

  • Просторная гостиная-кухня 20 м²
  • Санузел 3.5 м² с душевой кабиной
  • Прихожая 5 м² с гардеробной зоной
  • Техническое помещение 4 м²
  • Выход на террасу (при наличии)

Второй этаж (36 м²):

  • Спальня 15 м²
  • Детская/кабинет 12 м²
  • Санузел 4 м² с ванной
  • Холл/коридор 5 м²
  • Выход на террасу кровли

Терраса на кровле (25 м²):

  • Зона отдыха с мебелью
  • Место для барбекю или летней кухни
  • Озеленение (кашпо, вертикальное озеленение)
  • Безопасное ограждение высотой 1.2 м
  • Наружное освещение и розетки

Уникальная терраса на кровле

Преимущества эксплуатируемой кровли:

  • Панорамный вид: Обзор окружающего ландшафта на 360°
  • Дополнительная жилая площадь: Фактически третий уровень дома
  • Приватность: Отдых в уединении, защита от посторонних глаз
  • Зона для развлечений: Место для вечеринок, барбекю, йоги, загара
  • Повышение стоимости: Терраса на крыше увеличивает стоимость недвижимости на 15-20%

Обустройство террасы:

  • Прочный настил из террасной доски (ДПК)
  • Система водоотвода и гидроизоляции
  • Безопасное ограждение из закаленного стекла и нержавеющей стали
  • Зоны для разных видов отдыха (шезлонги, обеденная группа, диванные зоны)
  • Возможность установки перголы, маркизы или навеса
  • Подготовка под летнюю кухню или барную стойку

Варианты использования дома

1. Для постоянного проживания семьи

  • Комфортное жилье для семьи из 3-4 человек
  • Отдельные зоны для взрослых и детей
  • Уникальное пространство для отдыха на террасе
  • Современная инфраструктура для работы и учебы
  • Возможность приема гостей и родственников

2. Для загородного отдыха

  • Уютный дом для выходных и праздников
  • Терраса для вечерних посиделок и наблюдения за звездами
  • Близость к природе с комфортом городского жилья
  • Место для хобби и творчества
  • Пространство для семейных традиций и праздников

3. Для коммерческого использования

  • Аренда: 25 000 - 40 000 руб./месяц в зависимости от локации
  • Гостевой дом: Почасовая или посуточная аренда
  • Креативное пространство: Мастерская, студия, офис
  • Туристический бизнес: Для баз отдыха, эко-отелей
  • Инвестиция: Быстрый рост стоимости недвижимости

Преимущества модульного дома с террасой

Рекордные сроки строительства

Традиционный дом строится 6-12 месяцев, модульный дом с террасой — всего 30-40 дней. Заезжайте в новый дом уже через полтора месяца после заказа!

Фиксированная стоимость и прозрачность

Цена 4 290 000 рублей включает ВСЁ: от фундамента до чистовой отделки. Никаких скрытых платежей или непредвиденных расходов.

Энергоэффективность и экологичность

  • Высокая теплоизоляция (экономия на отоплении 50-60%)
  • Энергосберегающие окна и двери
  • Система рекуперации тепла в вентиляции
  • Возможность установки солнечных батарей
  • Экологичные материалы отделки

Качество и индивидуальность

Все элементы изготавливаются на заводе с контролем качества. Возможность выбора отделки, планировки и дополнительных опций.

Финансовые расчеты и инвестиционная привлекательность

Стартовые инвестиции:

  • Стоимость дома с террасой: 4 290 000 руб.
  • Подготовка участка и фундамент: 200 000 руб.
  • Подключение коммуникаций: 150 000 руб.
  • Благоустройство территории: 150 000 руб.
  • Итого инвестиции: 4 790 000 руб.

Доход от аренды:

При сдаче в долгосрочную аренду:

  • Средняя стоимость аренды: 30 000 руб./месяц
  • Загрузка в год: 10-11 месяцев
  • Годовая выручка: 330 000 руб.
  • Коммунальные расходы: 60 000 руб./год
  • Налоги и обслуживание: 40 000 руб./год
  • Чистый доход: 230 000 руб./год
  • Окупаемость: 20-21 год (при сдаче в аренду)

Важно: При использовании для посуточной аренды в курортных районах доходность увеличивается в 2-3 раза, а срок окупаемости сокращается до 8-10 лет.

Требования к участку

  • Площадь участка: от 150 м² для размещения дома и подъезда
  • Электроснабжение: 15 кВт (рекомендуется 380В)
  • Водоснабжение: Скважина или центральный водопровод
  • Канализация: Септик или центральная канализация
  • Подъездные пути: Для доставки модулей и техники
  • Ландшафт: Участок с уклоном не более 5%

Безопасность и соответствие стандартам

  • Сертификаты соответствия: Все материалы имеют необходимые сертификаты
  • Пожарная безопасность: Негорючие материалы, правильные дымоходы
  • Сейсмоустойчивость: Каркас рассчитан на сейсмичность до 8 баллов
  • Экологичность: Применение безопасных для здоровья материалов
  • Долговечность: Срок службы конструкции - 50 лет

Этапы строительства (30-40 дней)

День 1-7: Подготовительные работы

Устройство фундамента, подвод коммуникаций к дому

День 8-20: Основной монтаж

Сборка каркаса, установка стен, перекрытий, кровли

День 21-30: Внутренние работы

Монтаж инженерных систем, отделка помещений

День 31-40: Пуско-наладочные работы

Благоустройство террасы, тестирование систем, сдача объекта

Отзывы наших клиентов

"Построили дом для постоянного проживания за городом. Удивила скорость строительства — всего 35 дней от фундамента до заселения. Качество на высоте, особенно порадовала терраса на крыше — теперь это наше любимое место для вечерних чаепитий с видом на лес. Зимой в доме тепло, расходы на отопление минимальные."

— Семья Петровых, Ленинградская область

"Купили дом как инвестицию — сдаем посуточно на берегу озера. Терраса на крыше стала главным козырем в объявлениях. Гости в восторге от панорамных видов. За летний сезон окупили треть стоимости дома. Рекомендую тем, кто ищет быстрый способ получить доходную недвижимость."

— Анна, предприниматель, Карелия

Итоговые выводы

Дом 72 м² с террасой на кровле за 4 290 000 рублей — это не просто жилье, а современное пространство для жизни, отдыха и даже бизнеса. Уникальная планировка с эксплуатируемой террасой на крыше, быстрые сроки строительства и разумная цена делают этот проект идеальным выбором для тех, кто ценит комфорт, функциональность и инновационные решения.

Не откладывайте мечту о собственном доме на потом. Свяжитесь с нами сегодня, чтобы получить детальный расчет, 3D-визуализацию вашего будущего дома и начать строительство уже через неделю после заключения договора!

Готовы к современному загородному дому?

Телефон для консультаций: +7 938 422 90 60

Электронная почта: gsm.ooo@internet.ru

Наш сайт: www.gsm-ooo.ru

4 290 000 ₽

*Специальное предложение! При заказе до конца месяца — система освещения террасы в подарок и бесплатный 3D-проект!*

Дом 72 м² с террасой на кровле - боковое изображение

Специальное предложение!

Дом с террасой на кровле под ключ

4 290 000 ₽

Акция: освещение террасы в подарок при заказе до 30 числа

Заказать дом

Преимущества террасы на кровле:

  • Панорамный вид на 360°
  • Дополнительная жилая площадь
  • Приватность и уединение
  • Идеальное место для отдыха
  • Повышение стоимости недвижимости
  • Уникальность и престиж

Поэтапные сроки строительства

  • Подготовка участка и фундамент: 7 дней
  • Монтаж основной конструкции: 13 дней
  • Внутренние отделочные работы: 10 дней
  • Пусконаладочные работы: 10 дней
  • Общий срок: 30-40 рабочих дней
×
1/1